Herzlich willkommen bei Knipping & Grümer Immobilien GmbH

Kontakt

Knipping & Grümer Immobilien GmbH
Talsperrenweg 5, Gummersbach
Telefon: 0 22 61 - 91 93 66
Telefax: 0 22 61 - 91 93 67
info@knipping-gruemer.de

Bleiben Sie mit uns in Kontakt Folgen Sie uns auf Facebook!

Mehr geht nicht! 9,5 % Rendite!

 

Renditestarkes Gewerbe-/Anlageobjekt mit PV-Anlage als Kapitalanlage. Das Gewerbeobjekt verfügt über mehrere Hallenbauteile sowie Büroeinheiten mit insgesamt 10 Mieteinheiten. Insgesamt ca. 1.740 m² vermietbare Fläche, verteilt auf 3 Gebäudeteile. Die gesunde [...]

 

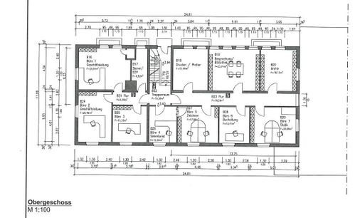
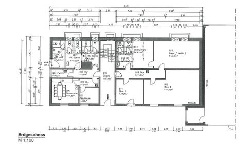
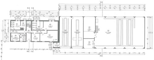
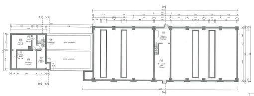
Ansicht Werkstatt und BüroteilBürogebäudeStraßenansichtWerkstattgebäudeStraßenansichtLageplan mit GebäudenGrundriss UG und Kfz.-WerkstattGrundriss OG BürogebäudeGrundriss EG BürogebäudeGrudriss OGGrundriss KGGrundriss KGNordansichtOstansichtWestansichtSüdansicht