Herzlich willkommen bei Knipping & Grümer Immobilien GmbH

Kontakt

Knipping & Grümer Immobilien GmbH
Talsperrenweg 5, Gummersbach
Telefon: 0 22 61 - 91 93 66
Telefax: 0 22 61 - 91 93 67
info@knipping-gruemer.de

Bleiben Sie mit uns in Kontakt Folgen Sie uns auf Facebook!

Erstbezug! Stilvolle Maisonettewohnung mit eigenem Eingang in ländlicher Idylle!

 

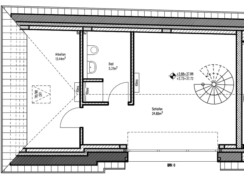
Willkommen in Ihrem neuen Zuhause! Diese hochwertige Maisonettewohnung in einem exklusiven Neubau bietet modernen Wohnkomfort auf zwei Etagen mit rund 87 m² Wohnfläche. Ideal für Singles oder Paare! Das Besondere auf [...]

 

 
FrontansichtEinbaukücheSchlafzimmerSchlafzimmer Ansicht 2Schlafzimmer 2BadezimmerGäste-WCBadezimmerGrundriss ErdgeschossGrundriss Obergeschoss