Herzlich willkommen bei Knipping & Grümer Immobilien GmbH

Kontakt

Knipping & Grümer Immobilien GmbH
Talsperrenweg 5, Gummersbach
Telefon: 0 22 61 - 91 93 66
Telefax: 0 22 61 - 91 93 67
info@knipping-gruemer.de

Bleiben Sie mit uns in Kontakt Folgen Sie uns auf Facebook!

Einfamilienhaus in begehrter Wohnlage von Kettwig!

 

Das vollunterkellerte, freistehende Haus präsentiert sich auf einem großzügigen, 1.101 m² großen Grundstück in begehrter Südwestausrichtung und bietet vielfältige Nutzungsmöglichkeiten für Familien sowie Bauherren mit individuellen Gestaltungswünschen. Der liebevoll angelegte, [...]

 

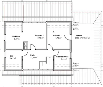
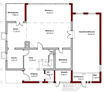
Wintergarten mit Blick ins GrüneAnsicht StraßenseiteAnsicht GartenseiteSonnenterrasseBlick in den Gartenvielfältiger Pflanzenbestand......mit toller Farbenprachtgemütlicher SitzplatzGaragegroßzügiger WohnbereichEssbereich mit offenem Kamingroßes TafelzimmerEinbaukücheEingangsbereichTreppenhausSchlafzimmer......mit Ankleidebereichzweites Schlafzimmer......mit Zugang zur DachterrasseArbeitszimmer mit Einbautenneuwertiges BadezimmerGrundriss KellergeschossGrundriss ErdgeschossGrundriss Dachgeschoss